The KEU FAMILY, with 44 m², stands apart as one of the few compact homes offering two bedrooms with full luxury finishes. CSA A277 certified and adapted to Canadian standards, it represents exclusivity, resilience, and the refinement of a rare architectural piece.



Available in one or two-room configurations, offering smart layouts that provide privacy without losing warmth and connection.

Open-concept kitchen with quartz countertops, soft-close drawers, and durable finishes for everyday use.


Family-size bathroom featuring rain-style shower, floating vanity, and large-format porcelain walls.

Starting at
Does not include installation or transport
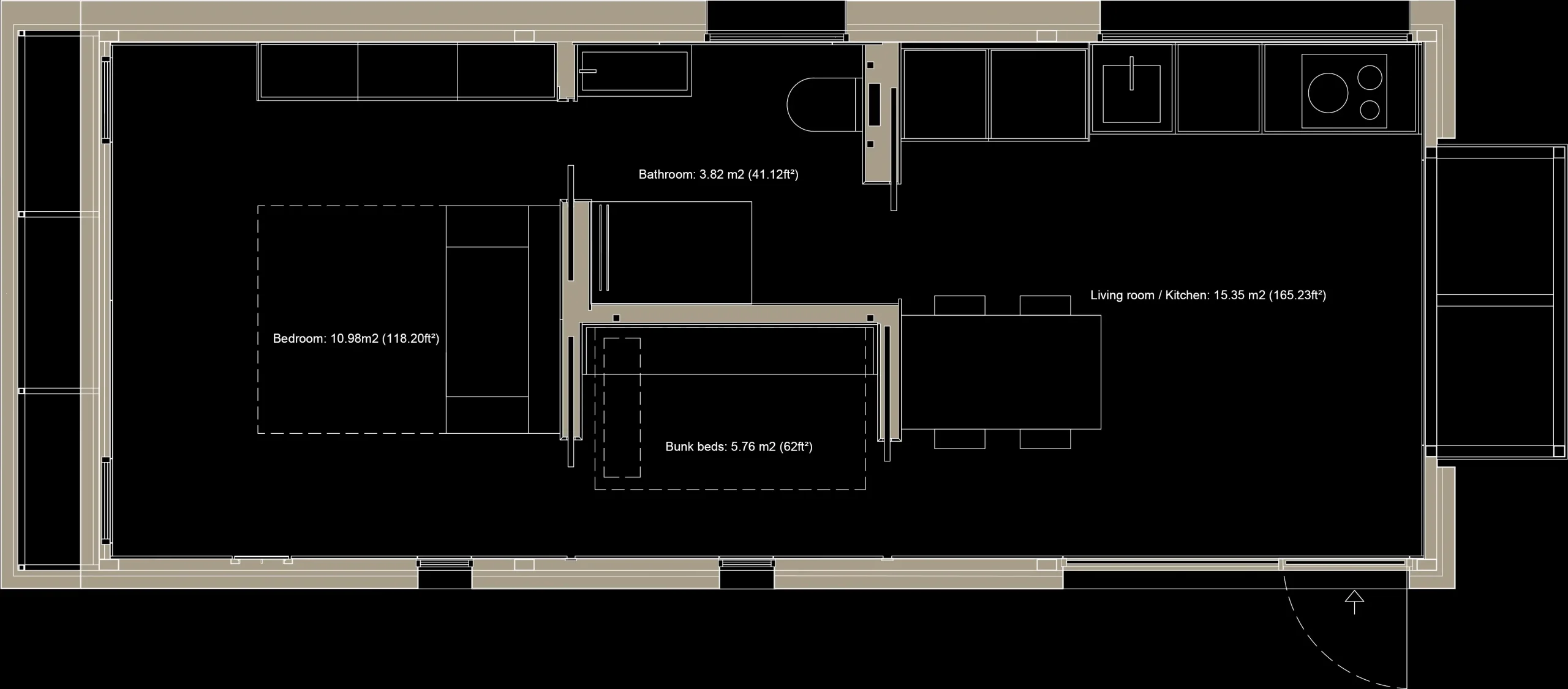
Square footage
without terraces
Height: 12′ without foundation Weight: 26,455 lb
Space requirement
Color

Traffic White

Champagne Metalic

Roof colors


WINDOWS








Structure
Load-bearing frame made of rolled steel with 300-micron anti-corrosion treatment.
Roof
Flat roof with hidden 5% slope.
7.84″ structural sandwich panel insulation.
Double-layer asphalt waterproofing membrane.
Cladding
High-durability aluminum composite panel (estimated lifespan >25 years)
Windows & doors
Aluminum joinery with thermal break
Structural anchoring every 4.72 inches
Optional hurricane-resistant safety glazing (SentryGlass)
Canopy
not included
Deck
available as an optional extra (not included as standard)
Exterior lighting
integrated perimeter LED lighting system (non-dimmable)
Ceiling height
Flooring
Multilayer water-resistant vinyl floor, oak-effect finish
Lighting
Integrated LED system (warm light 3000K, non-dimmable)
FLOORS






PORCELAIN TILES







Pulpis Natural Silk 6mm



Kitchen
Suspended design on exposed metal structure with backlighting
Porcelain countertop with integrated sink 16″ × 16″
Lacquered furniture with matching drawers and cabinets
Includes:
-Ceramic hob with 2 or 4 zones (depending on configuration)
-Integrated extractor hood
-Integrated refrigerator
-Hidden waste bin
-Included cutlery
-Metal organizers in drawers
EXTERIOR CABINETS







Bathroom
Wall-mounted unit with integrated porcelain sink
-Porcelain countertop
-Porcelain-lined shower with matte black screen
-Wall-hung toilet with built-in cistern
-Backlit mirror (31.5″ × 31.5″)
-Matte black taps
-Integrated storage in the unit
SHOWER FINISHING










FAUCETS COLLECTION



Bedroom and storage
Lift-up storage bed, queen size -Built-in wardrobe with hanging rail
BLIND ROLLS










SOFA BED









BED WITH CANAPE



Thermal insulation
Roof: PUR 7.84″ – R54 h·ft²·°F/BTU
Exterior wall: PUR 1.57″ – R11 h·ft²·°F/BTU
Interior wall: EPS 3.14″ – R11 h·ft²·°F/BTU
Floor: XPS 1.57″ – R7 h·ft²·°F/BTU
Climate control and ventilation:
Centralized ducted system (cooling/heating/air renewal)
Concealed indoor unit with distribution through suspended ceiling
Domestic hot water (configurable)
-Option 1: tankless heater (demand-activated)
-Option 2: 21-gallon double-tank water heater with digital control and high efficiency
Solar pre-installation
Available under personalized study based on location and user needs
Access control and security
Digital lock with fingerprint, code, physical key, card and mobile app access
Waterproof, suitable for outdoor use
Your new lifestyle begins here. Together, we create spaces that are tailored to you, elevating you from the ordinary to the extraordinary. Our team is here to guide you every step of the way, turning your vision into reality.
| Cookie | Duration | Description |
|---|---|---|
| cookielawinfo-checkbox-analytics | 11 months | This cookie is set by GDPR Cookie Consent plugin. The cookie is used to store the user consent for the cookies in the category "Analytics". |
| cookielawinfo-checkbox-functional | 11 months | The cookie is set by GDPR cookie consent to record the user consent for the cookies in the category "Functional". |
| cookielawinfo-checkbox-necessary | 11 months | This cookie is set by GDPR Cookie Consent plugin. The cookies is used to store the user consent for the cookies in the category "Necessary". |
| cookielawinfo-checkbox-others | 11 months | This cookie is set by GDPR Cookie Consent plugin. The cookie is used to store the user consent for the cookies in the category "Other. |
| cookielawinfo-checkbox-performance | 11 months | This cookie is set by GDPR Cookie Consent plugin. The cookie is used to store the user consent for the cookies in the category "Performance". |
| viewed_cookie_policy | 11 months | The cookie is set by the GDPR Cookie Consent plugin and is used to store whether or not user has consented to the use of cookies. It does not store any personal data. |