The KEU EVOQUE, with 44 m², is conceived as an exclusive compact suite. CSA A277 certified and engineered to endure Canadian climates, it delivers handcrafted elegance and a rare opportunity for those seeking exclusivity in a refined, minimalist format.



A seamless, minimalist layout with hidden appliances and a sleek aesthetic throughout.
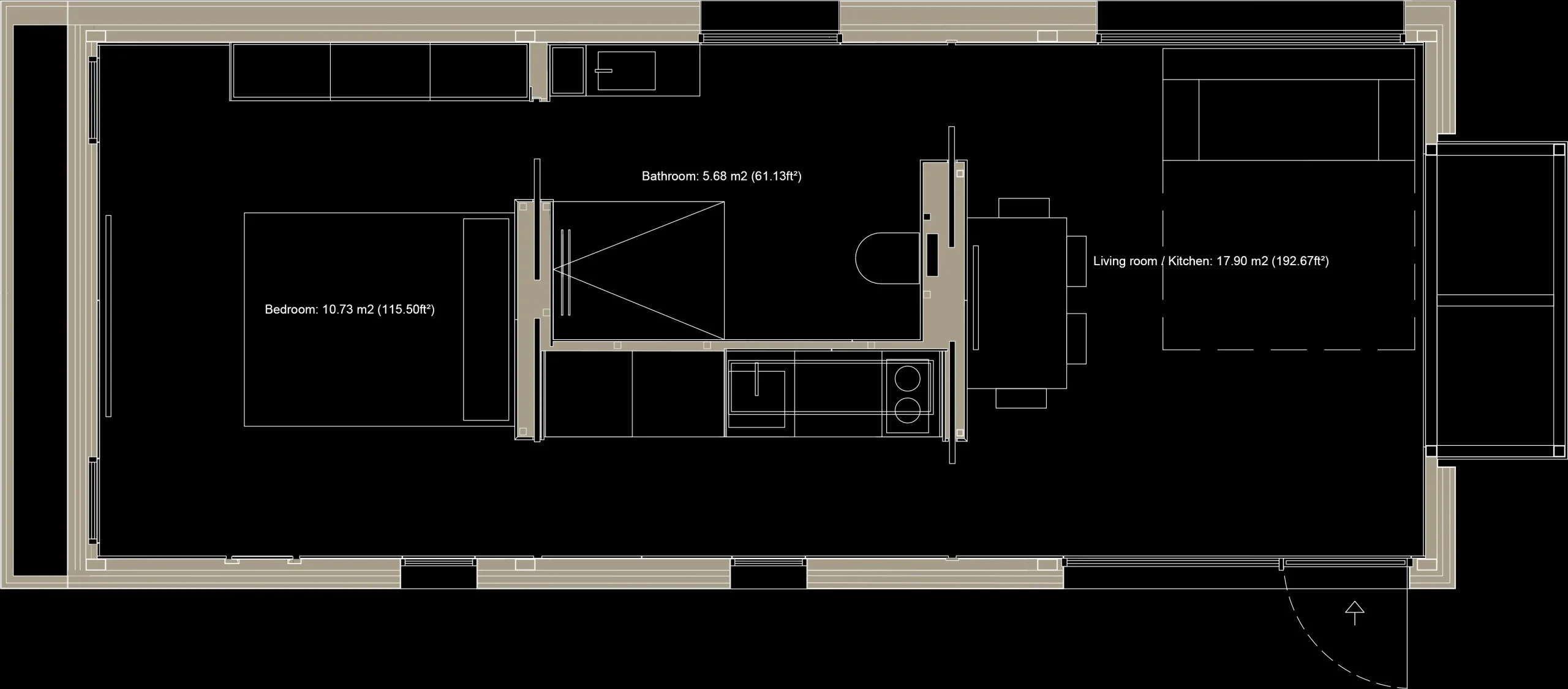
Adaptable layout with the option of one or two sleeping zones, balancing modular design and comfort.
Technology meets elegance with embedded shower, backlit mirror, and brushed brass details.

A seamless, minimalist layout with hidden appliances and a sleek aesthetic throughout.

Adaptable layout with the option of one or two sleeping zones, balancing modular design and comfort.

Technology meets elegance with embedded shower, backlit mirror, and brushed brass details.

Starting at
Does not include installation or transport
Square footage
without terraces
Space requirement
Color

Traffic White

Champagne Metalic

Roof colors


WINDOWS








Structure
Load-bearing frame made of rolled steel with 300-micron anti-corrosion treatment.
Roof
Flat roof with hidden 5% slope.
7.84″ structural sandwich panel insulation.
Double-layer asphalt waterproofing membrane.
Cladding
High-durability aluminum composite panel (estimated lifespan >25 years)
Windows & doors
Aluminum joinery with thermal break
Structural anchoring every 4.72 inches
Optional hurricane-resistant safety glazing (SentryGlass)
Canopy
not included
Deck
available as an optional extra (not included as standard)
Exterior lighting
integrated perimeter LED lighting system (non-dimmable)
Ceiling height
Flooring
Multilayer water-resistant vinyl floor, oak-effect finish
Lighting
Integrated LED system (warm light 3000K, non-dimmable)
FLOORS






PORCELAIN TILES







Pulpis Natural Silk 6mm



Kitchen
Suspended design on exposed metal structure with backlighting
Porcelain countertop with integrated sink 16″ × 16″
Lacquered furniture with matching drawers and cabinets
Includes:
-Ceramic hob with 2 or 4 zones (depending on configuration)
-Integrated extractor hood
-Integrated refrigerator
-Hidden waste bin
-Included cutlery
-Metal organizers in drawers
EXTERIOR CABINETS







Bathroom
Wall-mounted unit with integrated porcelain sink
-Porcelain countertop
-Porcelain-lined shower with matte black screen
-Wall-hung toilet with built-in cistern
-Backlit mirror (31.5″ × 31.5″)
-Matte black taps
-Integrated storage in the unit
SHOWER FINISHING










FAUCETS COLLECTION



Bedroom and storage
Lift-up storage bed, queen size -Built-in wardrobe with hanging rail
BLIND ROLLS










SOFA BED









BED WITH CANAPE



Thermal insulation
Roof: PUR 7.84″ – R54 h·ft²·°F/BTU
Exterior wall: PUR 1.57″ – R11 h·ft²·°F/BTU
Interior wall: EPS 3.14″ – R11 h·ft²·°F/BTU
Floor: XPS 1.57″ – R7 h·ft²·°F/BTU
Climate control and ventilation:
Centralized ducted system (cooling/heating/air renewal)
Concealed indoor unit with distribution through suspended ceiling
Domestic hot water (configurable)
-Option 1: tankless heater (demand-activated)
-Option 2: 21-gallon double-tank water heater with digital control and high efficiency
Solar pre-installation
Available under personalized study based on location and user needs
Access control and security
Digital lock with fingerprint, code, physical key, card and mobile app access
Waterproof, suitable for outdoor use
Your new lifestyle begins here. Together, we create spaces that are tailored to you, elevating you from the ordinary to the extraordinary. Our team is here to guide you every step of the way, turning your vision into reality.
| Cookie | Duration | Description |
|---|---|---|
| cookielawinfo-checkbox-analytics | 11 months | This cookie is set by GDPR Cookie Consent plugin. The cookie is used to store the user consent for the cookies in the category "Analytics". |
| cookielawinfo-checkbox-functional | 11 months | The cookie is set by GDPR cookie consent to record the user consent for the cookies in the category "Functional". |
| cookielawinfo-checkbox-necessary | 11 months | This cookie is set by GDPR Cookie Consent plugin. The cookies is used to store the user consent for the cookies in the category "Necessary". |
| cookielawinfo-checkbox-others | 11 months | This cookie is set by GDPR Cookie Consent plugin. The cookie is used to store the user consent for the cookies in the category "Other. |
| cookielawinfo-checkbox-performance | 11 months | This cookie is set by GDPR Cookie Consent plugin. The cookie is used to store the user consent for the cookies in the category "Performance". |
| viewed_cookie_policy | 11 months | The cookie is set by the GDPR Cookie Consent plugin and is used to store whether or not user has consented to the use of cookies. It does not store any personal data. |